Chúng ta đã quen với việc phòng bếp thường có màu sắc tươi sáng, nhưng nếu biết kết hợp hài hòa thì gam màu tối cũng đạt đến hiệu quả thẩm mỹ cao.
Tôi dùng màu đen xám làm tông chủ đạo phối khéo léo với màu trắng ngà tủ bếp trên, tạo sự cân bằng về màu sắc, mang đến sự thoáng đãng cho gian bếp.

Với căn bếp này, tôi có một lựa chọn thú vị là lấy màu đen xám làm tông chủ đạo, nhưng không chỉ sử dụng một màu duy nhất mà phối khéo léo với màu trắng ngà tủ bếp trên, tạo nên sự cân bằng về màu sắc và thoáng đãng cho không gian.
Bên cạnh đó, việc sử dụng chất liệu gỗ công nghiệp Laminate có độ bóng và khả năng phản chiếu ánh sáng cũng giúp nhà bếp thêm sáng và bắt mắt hơn. Sự kết hợp màu sắc sống động cùng ánh sáng phù hợp sẽ kích thích vị giác, truyền cảm hứng và đam mê cho việc chế biến một bữa ăn ngon cho gia đình.

Màu xám đen gợi lên cảm giác bí ẩn, lôi cuốn điểm xuyết thêm gam màu tươi sáng là những khoang tủ hở với ánh sáng vừa đủ, hay chiếc ghế bàn bar, mặt thép các loại thiết bị, đặc biệt là tủ lạnh LG... sẽ tạo hiệu ứng thị giác mạnh mẽ, ấn tượng, hiện đại và sang trọng.
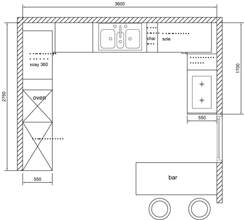
Khi thiết kế phòng bếp, tôi luôn tâm niệm đây là không gian sinh hoạt chung của gia đình và cũng là nơi chứa nhiều đồ đạc lỉnh kỉnh nhất, nên ngoài mặt thẩm mỹ ra thì bếp phải tiện nghi, dễ dàng sử dụng. Mặt bằng căn bếp không phải là khó để bố trí công năng theo các khu vực chức năng với thiết kế chữ U, điều này giúp người nội trợ di chuyển linh hoạt và thao tác nhanh chóng, hiệu quả hơn.

Điều thú vị ở kiểu bố cục này là nếu phòng ăn nhỏ thì tủ bếp có một quầy bar sang chảnh. Một thiết kế đơn giản nhưng đầy sáng tạo, thỏa mãn những vị khách khó tính nhất muốn sở hữu không gian nội thất nhà bếp sang trọng và ấm cúng.

Không có nhận xét nào:
Đăng nhận xét